Sint Jacobsstraat 8a Op Hoogte Wonen

Sint Jacobsstraat 8a8911 HT Leeuwarden

Vraagprijs € 395.000 k.k.

Bovenwoning uit 1882 met 5 kamers met een woonoppervlakte van 182m2 met energielabel E en is beschikbaar.

Sint Jacobsstraat 8a
Sint Jacobsstraat 8a
Sint Jacobsstraat 8a
Sint Jacobsstraat 8a
Sint Jacobsstraat 8a

Omschrijving

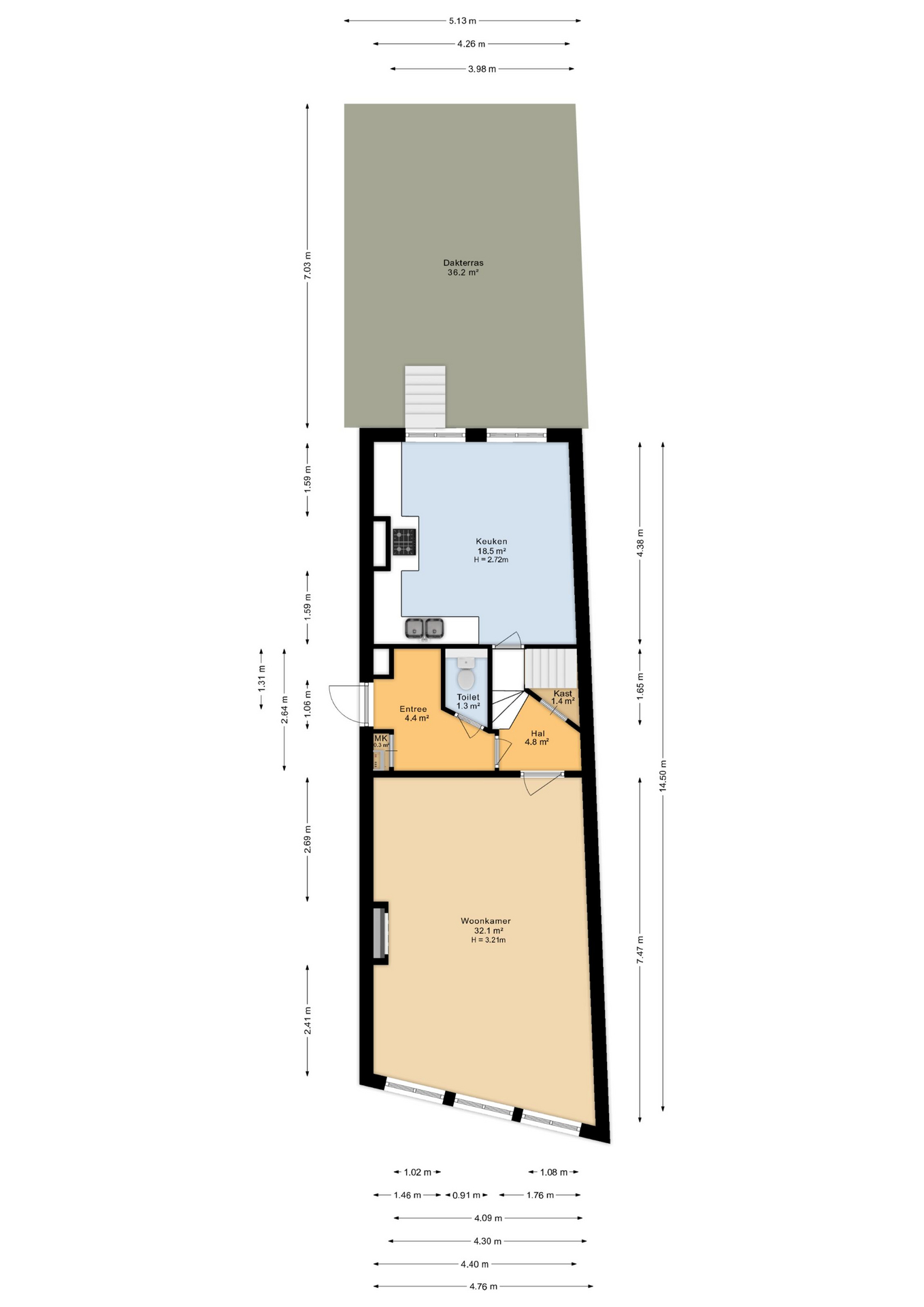
In het hart van de historische binnenstad van Leeuwarden, aan de charmante Sint Jacobsstraat, treft u dit karakteristieke en royale bovenappartement met een woonoppervlakte van maar liefst 182 m². Het appartement, verdeeld over drie verdiepingen, biedt vier ruime slaapkamers, een riant dakterras van 36 m² en volop mogelijkheden om geheel naar eigen wens te moderniseren. Dankzij de ligging in een monumentaal pand uit 1882 ademt het appartement karakter en historie.

De ingang bevindt zich in de steeg, waar een trapopgang toegang biedt tot de eerste woonlaag. Hier komt u aan bij de entree met toilet en meterkast. Doorlopend komt u in de hal die toegang biedt tot de sfeervolle woonkamer van circa 32 m², met hoge plafonds en grote raampartijen die zorgen voor veel lichtinval. Via dezelfde hal bereikt u de separate keukenruimte. De keuken is praktisch ingericht en biedt volop mogelijkheden om deze geheel naar eigen smaak te moderniseren. Daarnaast is er voldoende ruimte voor een royale eettafel, ideaal voor gezellige avonden met familie en vrienden. Via de keukenruimte bereikt u het royale dakterras van circa 36 m², gelegen op het noorden. Hier geniet u van een rustig en beschut buitenverblijf midden in de stad.

Via de trapopgang in de hal bereikt u de ruime overloop van de tweede verdieping, waar zich een tweede separaat toilet bevindt. De overloop biedt toegang tot drie slaapkamers en een badkamer met ligbad, douche en wastafelmeubel. De slaapkamer aan de voorzijde van het appartement is met ca. 19 m² bijzonder royaal en beschikt over hoge raampartijen die zorgen voor een prachtige lichtinval. De middelste kamer is perfect te gebruiken als thuiswerkruimte of logeerkamer. Aan de achterzijde bevindt zich nog een ruime slaapkamer van eveneens ca. 19 m², wederom voorzien van veel lichtinval.

De bovenste verdieping, te bereiken via vaste trap, biedt een royale zolderruimte van circa 73 m² met twee dakkapellen. Deze verdieping is geheel naar eigen behoefte in te delen, bijvoorbeeld als extra slaapkamers, hobbyruimte of atelier. Hier bevindt zich ook de cv-opstelling.

De Sint Jacobsstraat ligt in één van de mooiste delen van de binnenstad van Leeuwarden, op loopafstand van de Nieuwestad, het Zaailand en de sfeervolle grachten. Hier woont u in het midden van historische architectuur, gezellige horeca, winkels en culturele voorzieningen zoals de Stadsschouwburg De Harmonie en het Fries Museum.

Wilt u de sfeer van dit appartement zelf ervaren? Plan dan eenvoudig een bezichtiging via onze website of Funda.

Indeling o.a.:

1e verdieping:
- entree met toegang tot het toilet en de meterkast
- royale woonkamer met hoge plafonds en grote raampartijen die zorgen voor een prachtige lichtinval
- separate keukenruimte, voorzien van een praktische opstelling en voldoende ruimte voor een royale eethoek
- riant dakterras van circa 36 m², gunstig gelegen op het oosten

2e verdieping:
- ruime overloop met toegang tot het toilet
- slaapkamer 1 aan voorzijde over gehele breedte (ca. 19 m²)
- slaapkamer 2 (ca. 6 m²)
- badkamer met ligbad, douche wastafelmeubel
- slaapkamer 3 aan achterzijde over gehele breedte (ca. 19 m²)

Zolderverdieping:
- royale zolderverdieping met diverse gebruiksmogelijkheden van circa. 73 m²
- cv-opstelling
- een 4e slaapkamer is eenvoudig te realiseren

Bijzonderheden:
- bouwjaar: 1882
- monumentaal pand
- woonoppervlakte: 182 m²
- dakterras: 36 m² (7,03 m x 5,13 m)
- verwarming en warm water via cv-ketel 2016 (Nefit, eigendom)
- complete buitenzijde van het dak geïsoleerd en vernieuwd
- betaald parkeren, parkeergarage en parkeervergunningen in directe omgeving

Bezichtiging plannen

Kenmerken

Status Beschikbaar
Vraagprijs € 395.000 k.k.
Oplevering In overleg
Energielabel E
Bouwjaar 1882
Perceeloppervlakte 249m²
Inhoud 658 m³
Woonoppervlakte 182 m²
Aantal kamers 5
Aantal badkamers 1
Buitenruimte Zonneterras
Ligging tuin Oost
Tuinoppervlakte 36m²
Garage Geen garage
Type woning Appartement

Schakelt u ons in?
Dan bent u verzekerd van:

Ervaren NVM
Makelaar

Daarmee bent u verzekerd van expertise en garanties

Specialist in
appartementen

Wij zijn expert in de markt als het gaat om appartementen

U kiest uw
eigen diensten

Onze vertrouwde experts
nemen voor u het werk uit handen!

Schakelt u ons in?<br>Dan bent u verzekerd van:

Wat is Op Hoogte Wonen?

Op Hoogte Wonen is een gespecialiseerd NVM-makelaarskantoor met uitgebreide expertise in de aan- en verkoop van appartementen. De meeste appartementen bevinden zich op een verdieping maar ook begane grond appartementen vallen binnen ons specialisme. Staat uw droomappartement te koop bij een collega-makelaar? Geen probleem, wij kunnen u alsnog uitstekend helpen als aankoopmakelaar.

Precies zoals u het wilt.

U bepaalt zelf in hoeverre wij u ondersteunen. Wij brengen u in contact met betrouwbare, toonaangevende partners voor alles rondom uw appartement: aankoop, verkoop, financiering, inrichting, verhuizing en bouwkundige aanpassingen. Dankzij onze nauwe samenwerkingen zorgen we ervoor dat u altijd de juiste specialisten aan uw zijde heeft.

058 203 00 03